| Order Code: 00WEB |
| Total Living Area: | 3086 sq ft |
| Main Living Area: | 3086 sq ft |
| Bonus Area: | 525 sq ft |
| Garage Area: | 890 sq ft |
| Garage Type: | Attached |
| Garage Bays: | 3 |
| Foundation Types: | Basement - * $395.00 Total Living Area may increase with Basement Foundation option. Crawlspace - * $175.00 Slab Walkout Basement - * $395.00 Total Living Area may increase with Basement Foundation option. |
| Exterior Walls: | 2x4 2x6 - * $325.00 |
| House Width: | 85'8 |
| House Depth: | 69'0 |
| Number of Stories: | 1.5 |
| Bedrooms: | 4 |
| Full Baths: | 3 |
| Half Baths: | 1 |
| Max Ridge Height: | 27'0 from Front Door Floor Level |
| Primary Roof Pitch: | 9:12 |
| Roof Load: | 30 psf |
| Roof Framing: | Stick |
| Porch: | 688 sq ft |
| FirePlace: | Yes |
| 1st Floor Master: | Yes |
| Main Ceiling Height: | 9' |
| Upper Ceiling Height: | 9' |
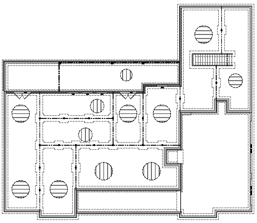
Sophisticated Southern Style Home Plan with Gameroom and Rear Porch
Sophisticated Southern Style Home Plan 56716 has 3,086 square feet of living space. Not only that, the bonus room upstairs has 525 future square feet. Your family will have abundant space because this design has 4 bedrooms and 3.5 bathrooms. In addition, there is a dedicated game room and a home office!
Southern Style Home Plan Exterior Tour
Before we step inside, let's take a quick tour of the exterior. Curb appeal is achieved with a perfectly symmetrical front façade. French doors serve as the centerpiece for the 8' deep covered front porch. Vertical white siding is a handsome contrast against the gray metal roof.
Let's walk around to the back of Southern Style Home Plan 56716. Enjoy the sunshine on the uncovered porch. It has French door access to the game room inside. Relax in the shade under the covered rear porch. It measures 41'10 wide by 10'4 deep. You can fit a dining table and lots of seating in this lovely outdoor living space.
Interior Tour With Wish List Items
Southern Style Home Plan 56716 has an open floor plan among the kitchen, dining, and great room. Decorative beams and brick features add charm and rustic appeal. The great room has a non-vented gas log fireplace and built-ins. The kitchen has a large island with lots of room for seating. In addition, there is a large walk-in pantry measuring 8'6 wide by 5' deep.
The master bedroom in Southern Style Home Plan 56716 is a huge selling point. Firstly, we are impressed by the vaulted ceiling. Secondly, the ensuite includes his and her vanities, spa tub, enclosed toilet, and custom shower. Thirdly, the huge walk-in master closet opens to the utility room. Talk about convenient!
Before we go look at the kids' bedrooms—notice the mudroom. The kids can drop off their book bags and shoes in the drop zone after entering from the garage. This will help in keeping your home clean and clutter-free. The 3 car garage gives you plenty of parking area, and it also includes a nook for a freezer and a small storage room.
The staircase in Southern Style Home Plan 56716 leads up to the bonus room. Finish the bonus room during the initial build, or wait until later. Either way, this area will add value to your home as a potential 5th bedroom. It has a bathroom and a walk-in closet. When finished, it will add 525 square feet of living space.
Bedrooms 2, 3, and 4 face the front of the house. Each has a walk-in closet. Bedroom 4 has a private bathroom, and it would make a nice guest room. Bathroom 2 has two vanities, and the shower and toilet can be closed for privacy. This will help the kids get ready faster in the morning.
Other wish list items in Southern Style Home Plan 56716 are listed below:
Accurate. Fast. Trusted.
Construction Cost Estimates That Save You Time and Money.
With your 30-day online cost-to-build estimate you can start enjoying these benefits today.
Home-Cost.com’s INSTANT™ Cost-To-Build Report also provides you these added features and capabilities:
Ask the Designer any question you may have. NOTE: If you have a plan modification question, please click on the Plan Modifications tab above.
A: The CAD files can be saved back to version 2000 for compatibility. Just make sure to note that information when ordering the plans. Framing plans are not included since these are based on site specific load information (snow, wind, etc.).
A: 9' X 8' and 18' X 8'
A: No...the CAD files that are available are only in 2D format. They are .DWG files compatible with 2004 and later versions of AutoCAD.
A: All of our CAD files are saved to AutoCAD .dwg format in 2004 Release so that older software can open them.
A: Generally, the lowest wall height will be approximately 5' tall.
A: The basement provided is unfinished, so there is no floorplan layout available. See attached foundation layout...
View Attached FileA: The photos shown on the website are the only images available at this time. See plan 56700 which has a similar floorplan for interior pictures.
A: We offer a walkout basement for an additional $395. Depending on the other options ordered, there could be a 5-7 business day delay.
A: Overhangs are 16" from the face of the studwall.
A: There are no photos of this exact plan, but you can view photos from a similar layout on plan 56700. Thank!
A: The house plan is not designed specifically for handicapped accessibility. There would likely need to be modifications made by your builder to accommodate for this. The hallways are a minimum of 3'-6" wide and doors into bedrooms are a minimum of 32". The main bathroom doors are also 32". There are other varying door sizes throughout the house.
A: This would likely require modifications to the plans. If you have a very experienced builder/framer, they may be able to modify on site, but the exterior walls and roof framing points would need to be raised on the areas of the plan with 9' ceilings. Click the "Modifications" link to inquire about a price and timeframe if you are interested in having the plans reflect the change.
A: We do not have photos of this exact plan, but you can see interior photos of plan 56700 which is a very similar design.
A: This information is not typically included with house plans. If you are inquiring in order to estimate materials, consult with your builder and they will be able to provide you with material quantities. We also offer materials estimates for purchase with the plans.
A: Framing plans are not included. These may be obtained locally by a structural engineer.
A: There is no roof framing plan included with the plans.
A: Any additional plan options such as 2x6 walls, basement foundation, etc. will not be reflected on the materials list. The materials list is only available for the original slab/crawlspace version of the design. As for the floor joists, the materials list specifies a 16" TJI joist system, but conventional lumber could also be used based on spans and load requirements at your site. This particular design was drawn under the 2018 IRC guidelines, but additional engineered drawings may be required by your local codes.
A: Yes....for slab/crawlspace version only. Options such as basement, 2x6, reverse, etc. will not be reflected. Also, due to unknown site conditions, the foundation materials will not be included. The materials list will be added to the pricing for $195. Please call to order this option.
A: Yes you can! Please click the "Modifications" tab above to get more information.
A: The national average for a house is running right at $125.00 per SF. You can get more detailed information by clicking the Cost-To-Build tab above. Sorry, but we cannot give cost estimates for garage, multifamily or project plans.
If you find the exact same plan featured on a competitor's web site at a lower price, advertised OR special SALE price, we will beat the competitor's price by 5% of the total, not just 5% of the difference! Our guarantee extends up to 4 weeks after your purchase, so you know you can buy now with confidence.























