Basement
: $495.00
May require additional drawing time, please call to confirm before ordering.
Total Living Area may increase with Basement Foundation option.
Crawlspace
: No Additional Fee
Slab
: $350.00
May require additional drawing time, please call to confirm before ordering.
Stem Wall Slab
: $350.00
May require additional drawing time, please call to confirm before ordering.
Walkout Basement
: $525.00
May require additional drawing time, please call to confirm before ordering.
Total Living Area may increase with Basement Foundation option.
Basement - * $495.00 Total Living Area may increase with Basement Foundation option. Crawlspace Slab - * $350.00 Stem Wall Slab - * $350.00 Walkout Basement - * $525.00 Total Living Area may increase with Basement Foundation option.
Exterior Walls:
2x6
House Width:
74'0"
House Depth:
44'0"
Number of Stories:
1
Bedrooms:
3
Full Baths:
2
Max Ridge Height:
25'0" from Front Door Floor Level
Primary Roof Pitch:
8:12
Roof Framing:
Truss
Porch:
503 sq ft
FirePlace:
Yes
Main Ceiling Height:
9'
* May require additional drawing time.
Plan Description
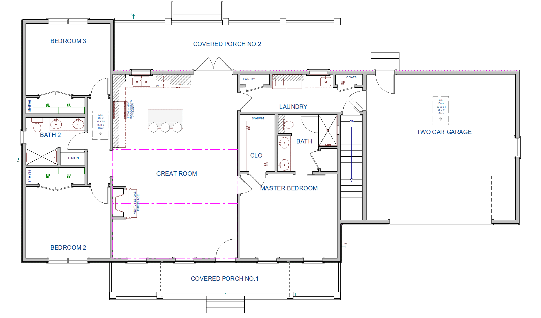
The 6-foot-deep covered front porch gives access to the open floor layout of the Great Room and Kitchen. The Great Room has a gas fireplace with a cathedral ceiling. The Kitchen/Dining area is spacious, with lots of cabinetry for storage. There is an island with a counter-high snack bar and convenient pull-out trash drawer. The Laundry Room has a large storage closet, a pantry, and a laundry sink with counter space. The Master Bedroom includes a Walk-in Closet and a private bath consisting of dual sinks, a separate walk-in shower and linen closet. On the opposite side of the home are two additional bedrooms, each with walk-in closets and share a large bathroom. The second bathroom has dual sinks, a tub/shower combo, and a large linen closet. The covered rear porch is 8-foot-deep. The attached Two-Car Garage connects to the Laundry Room for easy access to the Kitchen.
Special Features:
Entertaining Space
Front Porch
Mudroom
Open Floor Plan
Pantry
Rear Porch
Storage Space
What's Included?
View Sample Plan
Sample Plan may not actually be Plan 77464. It is just an example of this designer's contruction documents.
Floor plans - Included with your plans will be a detailed floor plan at 1/4" scale with a window and door schedule.
Foundation Plan - On many of our plans we offer you options on the type of foundation. The available options for each plan are shown on the page with the plans.
Electrical Plan - This sheet will show the locations of all lights, receptacles, switches, etc. as well as a roof layout.
Exterior Elevations - Our plans include complete front, sides and rear views, as well as any special exterior details.
Interior Elevations of cabinets, cabinet details, columns and walls with unique conditions.
Building Sections, Details and Typical Specifications Sheets
Plumbing diagrams and HVAC plans are not available for these homes, since they are generally not needed for home construction and since each county's code will vary and a licensed plumber and/or electrician must follow the codes.
Modifications
Receive a FREE modification estimate in one of 3 ways. Our modification team is ready to help you adjust any plan to fit your needs. The ReDesign process is simple and estimates are free!
2. Print, complete and fax this PDF Form to us at 1-800-675-4916.
3. Want to talk to an expert? Call us at 913-938-8097 (Canadian customers, please call 800-361-7526) to discuss modifications.
Note: - a sketch of the changes or the website floor plan marked up to reflect changes is a great way to convey the modifications in addition to a written list.
We Work Fast!
When you submit your ReDesign request, a designer will contact you within 24 business hours with a quote.
You can have your plan redesigned in as little as 14 - 21 days!
We look forward to hearing from you!
Start today planning for tomorrow!
Cost To Build
What will it cost to build your new home?
Let us help you find out!
Family Home Plans has partnered with Home-Cost.com to provide you the most accurate, interactive online estimator available. Home-Cost.com is a proven leader in residential cost estimating software for over 20 years.
No Risk Offer: Order your Home-Cost Estimate now for just $29.95! We will provide you with a discount code in your receipt for when you decide to order any plan on our website than will more than pay you back for ordering an estimate.
Accurate. Fast. Trusted. Construction Cost Estimates That Save You Time and Money.
$29.95 per plan
** Available for U.S. and Canada
With your 30-day online cost-to-build estimate you can start enjoying these benefits today.
INSTANT RESULTS: Immediate turnaround—no need to wait days for a cost report.
RELIABLE: Gain peace of mind and confidence that comes with a reliable cost estimate for your custom home.
INTERACTIVE: Instantly see how costs change as you vary design options and quality levels of materials!
REDUCE RISK: Minimize potential cost overruns by becoming empowered to make smart design decisions. Get estimates that save thousands in costly errors.
PEACE OF MIND: Take the financial guesswork out of building your dream home.
DETAILED COSTING: Detailed, data-backed estimates with +/-120 lines of costs / options for your project.
EDITABLE COSTS: Edit the line-item labor & material price with the “Add/Deduct” field if you want to change a cost.
Ask the Designer any question you may have. NOTE: If you have a plan modification question, please click on the Plan Modifications tab above.
Previous Q & A
Q:Do you have an option for an unlimited build CAD file?
A:Hello,
No, we do not have this as an option.
Q:We would like this house to be on a basement, where would the stairs be located? Could it be possible for basement to be access threw garage?
A:Hello,
Here is an image of the house plan with the basement stairs. We do have the stairs right next to the garage but a part of the house/laundry room. The basement stairs also add 4' onto the overall width of the house plan, making it 78' instead of 74' and increases the square footage to 1,643
A:Most of the windows are 36"x72" besides the two in the laundry and kitchen those are 36"x48" due to cabinets and the bathroom window is 24"x36".
Common Q & A
Q:Can I make modifications to this plan?
A:Yes you can! Please click the "Modifications" tab above to get more information.
Q:What is the estimated price to build this plan?
A:The national average for a house is running right at $125.00 per SF. You can get more detailed information by clicking the Cost-To-Build tab above. Sorry, but we cannot give cost estimates for garage, multifamily or project plans.
FHP Low Price Guarantee
If you find the exact same plan featured on a competitor's web site at a lower price, advertised OR special SALE price, we will beat the competitor's price by 5% of the total, not just 5% of the difference! Our guarantee extends up to 4 weeks after your purchase, so you know you can buy now with confidence.