Materials List: $300.00 Important Notice: Material list only includes materials for the base slab and crawlspace versions. Basement and 2x6 wall options NOT included.
Right Reading Reverse: $250.00
All sets will be Readable Reverse copies. Turn around time is usually 3 to 5 business days.
Additional License Fee: $495.00 Provides you with one additional license to build (a total of two builds).
Unlimited License To Build included with CAD file sale.
CAD file sale also includes PDF file.
Materials list will NOT reflect any options that have an additional fee because those are modifications. If you buy a materials list, it will only reflect the standard original plan. All of our CAD files are delivered in .DWG format and do not contain any type of 3D capability. Files are delivered in 2004 format so that older software versions will be able to open the files.
Available Foundation Types:
Basement
: $395.00
May require additional drawing time, please call to confirm before ordering.
Total Living Area may increase with Basement Foundation option.
Crawlspace
: $100.00
May require additional drawing time, please call to confirm before ordering.
Slab
: No Additional Fee
Walkout Basement
: $395.00
May require additional drawing time, please call to confirm before ordering.
Total Living Area may increase with Basement Foundation option.
Basement - * $395.00 Total Living Area may increase with Basement Foundation option. Crawlspace - * $100.00 Slab Walkout Basement - * $395.00 Total Living Area may increase with Basement Foundation option.
Exterior Walls:
2x6
House Width:
90'0
House Depth:
52'0
Number of Stories:
1
Bedrooms:
3
Full Baths:
2
Half Baths:
1
Max Ridge Height:
20'0 from Front Door Floor Level
Primary Roof Pitch:
2:12
Roof Load:
30 psf
Roof Framing:
Stick
Porch:
560 sq ft
FirePlace:
Yes
Main Ceiling Height:
9'
* May require additional drawing time.
Plan Description
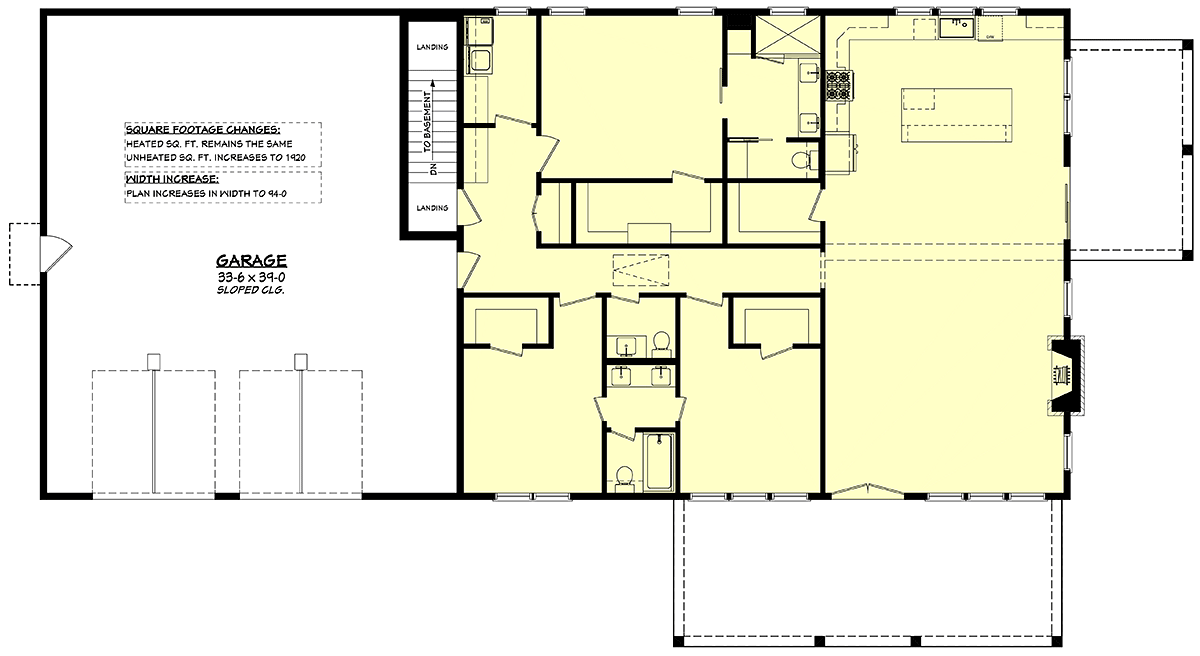
3 bedroom, 2.5 bathroom Handsome Barndominium Home Plan with Slanted Roofline has 2000 sq ft of living space and 1200 sq ft of garage space all on one level! First you will notice the 2 porches because they have solid wooden columns which look great combined with white siding and the stone chimney. The great room benefits from the high slanted roofline because it has a tall ceiling and more natural light thanks to the upper windows. Complete your kitchen with a large island which offers more prep space and even seating. Bedrooms 2 and 3 share a Jack and Jill bath, and there's a half bath off the hallway for guests. Most will build this home because of the oversized garage which has great shop space in the back.
Special Features:
Entertaining Space
Front Porch
Jack and Jill Bathroom
Mudroom
Open Floor Plan
Pantry
Storage Space
What's Included?
View Sample Plan
Sample Plan may not actually be Plan 82954. It is just an example of this designer's contruction documents.
Cover Sheet – May include index, front view of home, definitions, etc.
Foundation Plan – Typically includes dimensioned foundation plan with footing details.
Dimensioned Floor Plan – Electrical may be shown.
Exterior Views – Four exterior views of the residence with other miscellaneous details.
Roof Plan – Birds eye view showing all ridges, valleys and other necessary information.
Electrical Plan – Displays lighting fixtures, outlets and other necessary electrical items. These items may be shown on the Dimensioned Floor Plan. Switches are NOT shown and should be located by contractor at site.
Wall Section(s) – Detail of wall materials and assembly.
Building Section(s) – Section through home displaying necessary information about framing and other miscellaneous data.
Mechanical Plans - Because of varying site conditions, mechanical plans such as plumbing and HVAC plans are not included. These items are easily obtained by your mechanical contractor or material supplier.
Site Plans – If required, this information must be obtained locally to include the information specific to your individual property.
Structural Calculations – In certain areas, particularly those in earthquake and hurricane zones, permit departments may require you to submit structural calculations for your particular conditions. When required, you should consult with a local structural engineer.
Modifications
Receive a FREE modification estimate.
Plan modification is a way of turning a stock plan into your unique custom plan. It's still just a small fraction of the price you would pay to create a home plan from scratch. We believe that modification estimates should be FREE!
We provide a modification service so that you can customize your new home plan to fit your budget and lifestyle.
Email Designer This is the best and quickest way to get a modification quote!
Please include your preferred Foundation Type and a Specific List of Changes. You can also attach a Sketch of Changes.
It's as simple as that!
Cost To Build
What will it cost to build your new home?
Let us help you find out!
Family Home Plans has partnered with Home-Cost.com to provide you the most accurate, interactive online estimator available. Home-Cost.com is a proven leader in residential cost estimating software for over 20 years.
No Risk Offer: Order your Home-Cost Estimate now for just $29.95! We will provide you with a discount code in your receipt for when you decide to order any plan on our website than will more than pay you back for ordering an estimate.
Accurate. Fast. Trusted. Construction Cost Estimates That Save You Time and Money.
$29.95 per plan
** Available for U.S. and Canada
With your 30-day online cost-to-build estimate you can start enjoying these benefits today.
INSTANT RESULTS: Immediate turnaround—no need to wait days for a cost report.
RELIABLE: Gain peace of mind and confidence that comes with a reliable cost estimate for your custom home.
INTERACTIVE: Instantly see how costs change as you vary design options and quality levels of materials!
REDUCE RISK: Minimize potential cost overruns by becoming empowered to make smart design decisions. Get estimates that save thousands in costly errors.
PEACE OF MIND: Take the financial guesswork out of building your dream home.
DETAILED COSTING: Detailed, data-backed estimates with +/-120 lines of costs / options for your project.
EDITABLE COSTS: Edit the line-item labor & material price with the “Add/Deduct” field if you want to change a cost.
Ask the Designer any question you may have. NOTE: If you have a plan modification question, please click on the Plan Modifications tab above.
Common Q & A
Q:Can I make modifications to this plan?
A:Yes you can! Please click the "Modifications" tab above to get more information.
Q:What is the estimated price to build this plan?
A:The national average for a house is running right at $125.00 per SF. You can get more detailed information by clicking the Cost-To-Build tab above. Sorry, but we cannot give cost estimates for garage, multifamily or project plans.
FHP Low Price Guarantee
If you find the exact same plan featured on a competitor's web site at a lower price, advertised OR special SALE price, we will beat the competitor's price by 5% of the total, not just 5% of the difference! Our guarantee extends up to 4 weeks after your purchase, so you know you can buy now with confidence.