It seems that this plan does not offer a stock materials list, but we can make one for you. Please call 1-800-482-0464, x403 to discuss further.
Right Reading Reverse: $225.00
All sets will be Readable Reverse copies. Turn around time is usually 3 to 5 business days.
Additional License Fee: $495.00 Provides you with one additional license to build (a total of two builds).
Additional Notes
Garage Height: 16'
Available Foundation Types:
Basement
: $395.00
May require additional drawing time, please call to confirm before ordering.
Total Living Area may increase with Basement Foundation option.
Crawlspace
: $175.00
May require additional drawing time, please call to confirm before ordering.
Basement - * $395.00 Total Living Area may increase with Basement Foundation option. Crawlspace - * $175.00 Slab
Exterior Walls:
2x6
House Width:
96'2
House Depth:
64'0
Number of Stories:
2
Bedrooms:
4
Full Baths:
3
Max Ridge Height:
27'4 from Front Door Floor Level
Primary Roof Pitch:
4:12
Roof Framing:
Truss
Porch:
1190 sq ft
FirePlace:
Yes
Main Ceiling Height:
10'
Upper Ceiling Height:
9'
* May require additional drawing time.
Plan Description
Barndominium Style House Plan 84719 – 4 Bedroom Farmhouse with RV Garage and Wrap-Around Porch
Barndominium Style House Plan 84719 delivers the perfect combination of rustic farmhouse character and modern functionality, making it an ideal choice for homeowners who want spacious living, exceptional storage, and standout curb appeal. With 2,589 square feet of heated living space, this versatile design includes 4 bedrooms, 3 full bathrooms, and an impressive 1,627 square foot garage that features a dedicated RV bay, perfect for recreational vehicles, boats, trailers, or workshop needs.
The exterior is bold and inviting, showcasing modern dark siding enhanced with beautiful stone and timber accents. A stunning vaulted wrap-around porch stretches across the home, offering an incredible 1,190 square feet of covered outdoor living space. Whether you’re enjoying a morning coffee, hosting family gatherings, or relaxing outdoors in the evening, this porch provides the perfect setting from multiple scenic viewpoints.
Inside, the layout is thoughtfully designed for comfort and everyday convenience. Entry from the garage leads into a practical mudroom and main-level laundry room, creating an efficient transition from outdoor work or play into the home. The heart of the floor plan is the open-concept living area, featuring a spacious kitchen with a large island, abundant counter space, and a discreet butler’s-style walk-in pantry. The kitchen flows seamlessly into the dramatic two-story great room, where a cozy fireplace creates a warm and welcoming gathering space.
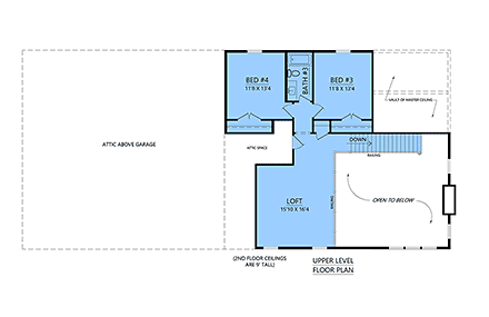
The first-floor primary suite is a luxurious private retreat, complete with a vaulted ceiling, a spacious walk-in closet with direct access to the laundry room, and an elegant en-suite bath. A second bedroom and full bath on the main level add flexibility for guests, multi-generational living, or a home office. Upstairs, two additional bedrooms share a full bath and are complemented by a spacious loft overlooking the great room—ideal for a reading nook, creative studio, or home office space.
With its blend of farmhouse charm, modern barndominium style, and unmatched garage space, House Plan 84719 is a perfect solution for families who want room to live, work, and grow.
Special Features:
Front Porch
Mudroom
Open Floor Plan
Pantry
Storage Space
Wrap Around Porch
What's Included?
View Sample Plan
Sample Plan may not actually be Plan 84719. It is just an example of this designer's contruction documents.
When you purchase a plan package, you receive the license to build that plan one (1) time. The package includes:
1/4" scale floor plan which includes window & door schedules. Our floor plans are very detailed.
1/4” scale Electrical layout which includes much detail such as: Recessed lights, fan/lights, switches, outlets, cable tv & telephone locations, exterior flood light locations, weather proof outlets, heat/vent/light locations…etc.
1/4" scale front and rear and side elevations.
1/4” scale foundation plans which do include floor & ceiling framing member specifications.
1/2” scale typical wall sections and all foundation section details.
Roof plans are provided with every package. This will show all roof slopes and a roof framing detail.
Miscellaneous details as needed per house plan.
Kitchen/ bath cabinet elevations are provided.
Modifications
Plan modification is a way of turning a stock plan into your unique custom plan. It's still just a small fraction of the price you would pay to create a home plan from scratch. You will receive a FREE, no obligation, modification estimate to get exactly the home plan you've been dreaming of. Simply contact the modification department 1 of 3 ways:
Call 866-465-5866 and talk to a live person that can give you and FREE modification estimate over the phone!
Email Us - Please Include your telephone number, plan number, foundation type, state you are building in and a specific list of changes.
Fax: 651-602-5050 - Make sure to include a cover sheet with your contact info. Make attention to the FamilyHomePlans.com Modification Department.
Cost To Build
What will it cost to build your new home?
Let us help you find out!
Family Home Plans has partnered with Home-Cost.com to provide you the most accurate, interactive online estimator available. Home-Cost.com is a proven leader in residential cost estimating software for over 20 years.
No Risk Offer: Order your Home-Cost Estimate now for just $29.95! We will provide you with a discount code in your receipt for when you decide to order any plan on our website than will more than pay you back for ordering an estimate.
Accurate. Fast. Trusted. Construction Cost Estimates That Save You Time and Money.
$29.95 per plan
** Available for U.S. and Canada
With your 30-day online cost-to-build estimate you can start enjoying these benefits today.
INSTANT RESULTS: Immediate turnaround—no need to wait days for a cost report.
RELIABLE: Gain peace of mind and confidence that comes with a reliable cost estimate for your custom home.
INTERACTIVE: Instantly see how costs change as you vary design options and quality levels of materials!
REDUCE RISK: Minimize potential cost overruns by becoming empowered to make smart design decisions. Get estimates that save thousands in costly errors.
PEACE OF MIND: Take the financial guesswork out of building your dream home.
DETAILED COSTING: Detailed, data-backed estimates with +/-120 lines of costs / options for your project.
EDITABLE COSTS: Edit the line-item labor & material price with the “Add/Deduct” field if you want to change a cost.
Ask the Designer any question you may have. NOTE: If you have a plan modification question, please click on the Plan Modifications tab above.
Common Q & A
Q:Can I make modifications to this plan?
A:Yes you can! Please click the "Modifications" tab above to get more information.
Q:What is the estimated price to build this plan?
A:The national average for a house is running right at $125.00 per SF. You can get more detailed information by clicking the Cost-To-Build tab above. Sorry, but we cannot give cost estimates for garage, multifamily or project plans.
FHP Low Price Guarantee
If you find the exact same plan featured on a competitor's web site at a lower price, advertised OR special SALE price, we will beat the competitor's price by 5% of the total, not just 5% of the difference! Our guarantee extends up to 4 weeks after your purchase, so you know you can buy now with confidence.